Florian Nagler Architekten
Projekte
Archiv
Impressum
Datenschutz
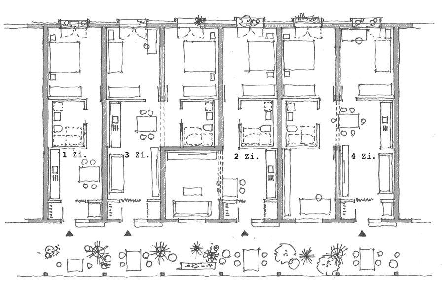
Wohnen Werkshöfe München
Projekt 2023 - 2027
<
zur Übersicht
>