Florian Nagler Architekten
Projekte
Archiv
Impressum
Datenschutz
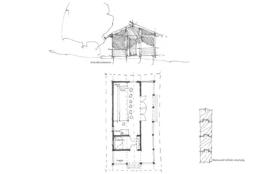
Karpfsee 2
Studie 2020
<
zur Übersicht
>