Florian Nagler Architekten
Projekte
Archiv
Impressum
Datenschutz
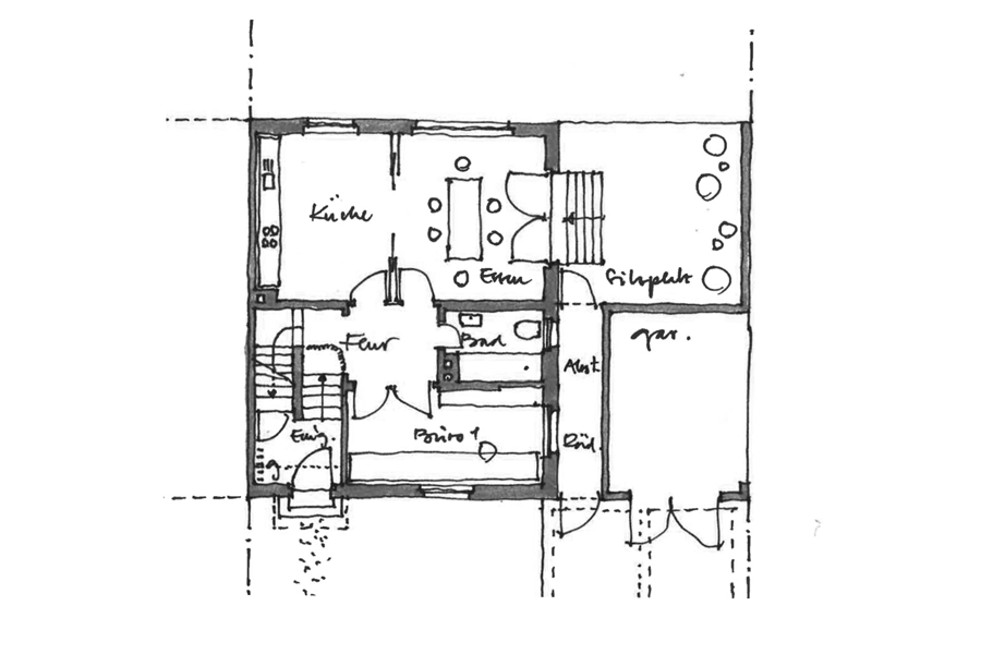
Haus in der Kederbachstraße München
Entwurf, 2011
<
zur Übersicht
>